Раскопки в Тульском кремле
10 сентября 2020 г.
В августе–октябре 2019 г. Подмосковной экспедицией Института археологии РАН проводились археологические исследования в центральной части Тульского кремля. Их задачей было "изучение культурного слоя и остатков фундаментов Успенского собора XVII в. с целью создания музейного окна" в связи с подготовкой к празднованию 500-летия Тульского кремля.
Каменный Успенский собор с приделами Собора Архангела Гавриила и Тихона Амафунтского построен в первой половине 1680-х гг. на месте деревянного храма, современного возведению крепости, престолы которого были посвящены Собору Архангела Гавриила и епископу Василию Парийскому. На празднование первого приходился день рождения строителя тульской крепости – великого князя Василия Ивановича, придел же назван в честь его небесного патрона. За почти столетнее существование собор 1680-х гг. пришел в ветхость и был разобран, а новый каменный Успенский собор 1762–1767 гг., значительно превосходящий его по размерам, перемещён к югу; площадка же осталась незастроенной и доступной для изучения.
Ранее целенаправленного археологического исследования Успенского собора XVII в. не проводилось. Фрагмент его фундамента и участок церковного некрополя случайно вскрыты в ходе охранных раскопок 1979 г., но из-за условной привязки шурфа постройка не могла быть локализована. Поэтому в 2017 г. на участке планируемых работ проведены георадарные исследования, выявившие контуры сооружения, вероятно, связанного с Успенским собором XVII в.
Фундаменты алтарной части собора

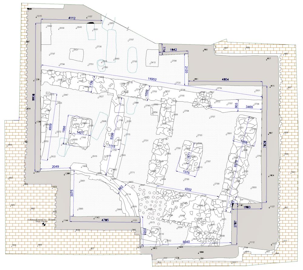
Обмер плана фундаментов Успенского собора
В заложенном здесь раскопе под булыжной мостовой XIX в. и мощной нивелировочной подсыпкой выявлены ленточные фундаменты, выполненные во рвах с почти вертикальными стенками, из постелистых плит местного известняка на известковом растворе и глине, сохранившиеся приблизительно на две трети – половину своей высоты. Их оси составляют три прямоугольные в плане ячейки, примыкавшие с запада к более широкому фундаменту, от которого раскрыты два взаимно перпендикулярных фрагмента, образующих один из углов здания.
Юго-восточный угол четверика. Кладка лицевой поверхности подвала и свайное поле
Этот фундамент сохранился неодинаково: наибольшая высота прослежена у южной стенки раскопа, далее на север и запад она уменьшалась. На северном участке кладка выбрана до подошвы, в которую были набиты деревянные сваи, от которых видны пустоты-«стаканы». С внутренней стороны кладка угла имеет гладко тёсаную лицевую поверхность, что свидетельствует о наличии заглубленного помещения. Соответственно, фундаменты стен подвала выполнялись в котловане, вприкладку к его бортам. Отметим, что внутреннюю (лицевую) версту составляли крупные блоки камня, в забутовке же использовались осколки известняка более мелких фракций.
Внутри двух ячеек, образуемых фундаментными лентами, обнаружены столбчатые фундаменты прямоугольных в плане очертаний, стороны которых параллельны осям вышеописанных конструкций. Не затронуты исследованиями участки кладки и выбранного рва, уходящие в восточную и западную стенки раскопа и образующие четвертую и пятую ячейки.
Фрагмент печи для обжига извести
В границах здания собора XVII в. обнаружена круглая в плане печь для обжига извести, устроенная вскоре после его разборки с использованием вторичных строительных материалов (известняковых плит). Она была заглублена с использованием бывшего подвала собора, а в качестве сырья использовался известняк фундаментов. Размеры этого сооружения позволяют связать его со строительством нового храма в 1762–1766 гг.

Участок «старого кладбища»
Возле собора существовало кладбище, функционирование которого можно разделить на два периода. Первый – это «старое кладбище», относящееся к первоначальному собору, которое в XVII в. уже частично попало под жилую застройку. Второй период начинается после постройки каменного храма. В раскопе выявлены погребения, некоторые из них перерезаны фундаментными рвами, т.е., относятся к раннему периоду. Ориентировка этих могил отличается от более поздних, которые расположены уже параллельно стенам каменного храма, продольная ось которого была значительно развернута к северу.

Графическая реконструкция изразца по найденным фрагментам
Находок, связанных с Успенским собором 1680-х гг., немного. Это небольшое количество рядового большемерного кирпича, несколько простейших деталей фасадного декора (тычковые валы, валики, элементы, имеющие характерные подтески для кладки криволинейных поверхностей), несколько фрагментов поливной черепицы. Отдельные фрагменты поливных изразцов XVII в. могли относиться к находившимся в соборе печам. Строительный горизонт, как и горизонт разборки здания, утрачен при поздних планировках площади.
Наличие заглубленного (подвального) помещения в южных квадратах раскопа подтверждает сведения описи о наличии в Успенском соборе двух погребов («а под церковью 2 погребы»). Фундаменты упомянутых в описи двух столбов в четверике в зону исследований не попали.
Система более узких, чем стены четверика, фундаментов, примыкающих к нему, принадлежала алтарной части собора, несмотря на отсутствие характерных для неё полукруглых выступов. Главный и придельные алтари объединялись в прямоугольный объём. Подобная пространственная композиция изредка встречается в церковной архитектуре второй половины XVII в., как в приходских, так и в монастырских храмах.
Стены алтаря, судя по их малой толщине (если даже учитывать, что фундаменты несколько расширялись кверху, их ширина в верхнем обрезе составляла немногим более 1,0 м), конструктивно вряд ли могли нести кирпичные своды и перекрывались, по-видимому, деревянным накатом по балкам. В данном случае такой тип перекрытия можно объяснить совмещением в одном объеме функций летней и зимней церквей.
А.В. Энговатова, О.Л. Прошкин, А.В. Яганов, Е.И. Рузаева